Quadrilocale in vendita

Genova, Via Fereggiano - Marassi
€ 149.000
4 locali 4 locali
100 Mq 100 Mq
2 bagni 2 bagni

Quadrilocale in vendita

Genova, Via Fereggiano - Marassi

Descrizione annuncio

Via Fereggiano

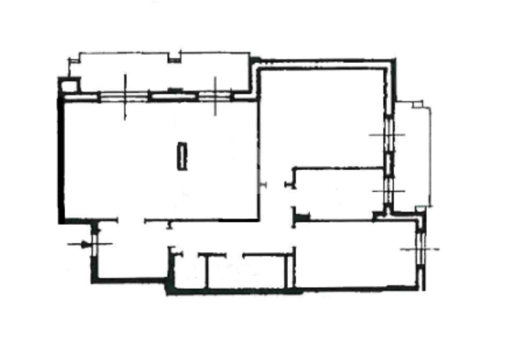
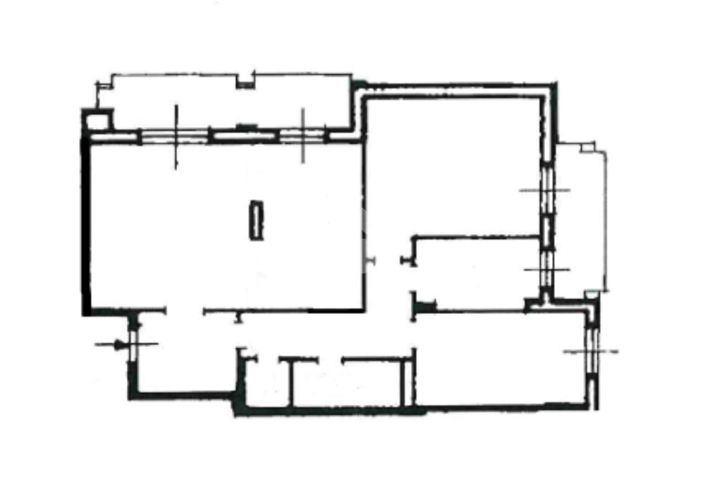
In una zona tranquilla e silenziosa, ma comoda a ogni tipo di servizio e necessità, Tecnocasa propone in vendita un quadrilocale, posto al quarto piano con ascensore, in un palazzo in ottime condizioni.

L'immobile si presenta composto da: ingresso collegato ad un ampio open-space dotato di due porta-finestra per l'accesso alla zona esterna, camera da letto matrimoniale, seconda camera da letto, bagno finestrato, secondo bagno completo di tutti i confort e ripostiglio.

Conclude la proprietà, la doppia balconata vivibile presente sia nella zona giorno, che una nella zona notte.

Molto luminoso grazie alla sua doppia esposizione, l'appartamento è stato ristrutturato totalmente nel 2022, sia a livelli di impianti, che finiture e condizionamento.

Il prezzo è comprensivo di una cantina, di pertinenza, situata nei fondi del condominio.

Mostra tutto

Nelle vicinanze

Trasporto pubblico Trasporto pubblico
Brignole
Brignole
1,5 Km
De Ferrari
De Ferrari
2,4 Km
Genova Piazza Manin
Genova Piazza Manin
1,0 Km
stazione di Genova Brignole
stazione di Genova Brignole
1,6 Km
Fereggiano 2 / Biga
Fereggiano 2 / Biga
20 m
Ricariche auto elettriche Ricariche auto elettriche
Genova Solari | EnelX
500 m
Genova Paul Valery | EnelX
720 m
Genova Sardegna | EnelX
900 m
Genova Marassi | EnelX
940 m
Genova Canevari | EnelX
1,1 Km
Scuole Scuole
Scuola Media Statale Lomellini-Cantore (sede)
250 m
Scuola Media Statale Luca Cambiaso
290 m
Scuola elementare Papa Giovanni XXIII
290 m
Istituto Paritario Maria Ausiliatrice
440 m
Scuola elementare (primaria) - Paritaria Contubernio D'Albertis
460 m
Farmacia Farmacia
Farmacia Dottor Manca
170 m
Parafarmacia erboristeria
410 m
Parafarmacia Via Tortosa
440 m
Farmacia Monticelli
450 m
Parafarmacia Solari
500 m
Ospedali Ospedali
ospedale San Martino
1,3 Km
Ospedale Evangelico Internazionale
1,5 Km
Casa di Cura Villa Montallegro
1,6 Km
Clinica Villa Serena
2,1 Km
Ospedale Galliera
2,5 Km
Supermercati Supermercati
Carrefour Express
50 m
Supermercati
110 m
Ekom
400 m
Basko
480 m
In's
530 m
Negozi Negozi
Negozi
190 m
Panificio Pasticceria Giancarlo e Rita
390 m
Panificio Valentino
400 m
Focacceria
450 m
Panificio Casareccio
460 m
Bar Bar
Bar Sport
60 m
Blue ice
170 m
Bar Galileo
290 m
Trattoria Ligure express
330 m
Bar del Corso
400 m
Ristoranti Ristoranti
Pizzeria O sole mio
280 m
Nuova Cina
340 m
Osteria Reatin
360 m
A Cabannetta de Cianderlin
370 m
La Locanda del Monte
500 m
Mostra tutto

Caratteristiche

Rif.:
61029047
Piano:
4 di 8 con ascensore (Piano alto)
Balconi:
2
Camere da letto:
2
Arredamento:
Parziale
Condizionamento:
Autonomo
Mostra tutto
Prezzo Prezzo
€ 149.000
Rata mutuo Rata mutuo
€ 703 / mese
Spese annue Spese annue
€ 1.800
Proponi il tuo prezzoProponi il tuo prezzo
Immobile valutato con T·Valuta

Classe Energetica

F
F
F
F
F
F
F
F
F
EP globale non rinnovabile:
80.44 kW h/m² anno
EP globale rinnovabile:
46.03 kW h/m² anno
EP invernale del fabbricato:
EP estiva del fabbricato:
Anno di costruzione:
1960
Riscaldamento:
Centralizzato
Tipo impianto:
A radiatori
Tipo alimentazione:
Metano

Ti interessa visionare l'immobile?

Fissa un appuntamento  Fissa un appuntamento

Richiedi informazioni

Clicca su Leggi per aprire l'informativa
* Questi campi sono obbligatori

Calcola il tuo mutuo

Semplice e senza impegno
Anticipo

( % )
Mutuo

( % )

pochi semplici passi

inserisci i tuoi dati
Questionario completato
Grazie per aver richiesto un appuntamento senza impegno con un nostro Consulente del Credito e Assicurativo.

Hai inserito correttamente tutti i dati necessari e a breve riceverai una e-mail con un link da convalidare per inviare i tuoi dati.
Affiliato
Studio Marassi Srl
Via Monticelli, 40 R 16142 Genova (GE)

Il nostro staff


  • Nicholas Peroncini
    Affiliato

  • Arianna Biagiotti
    Coordinatrice
Via Monticelli, 40 R 16142 Genova (GE)
Zona: Marassi
Mostra su mappa
Orari: Da Lunedì al Venerdì siamo aperti dalle 09.00 alle 12.30 e dalle 15.00 alle 20.00. Il Sabato siamo aperti dalle 09.00 alle 19.30. Domenica chiuso.
Affiliato
Studio Marassi Srl
Via Monticelli, 40 R 16142 Genova (GE)

2025 Tecnocasa Franchising S.p.A. - P. IVA 08365160152 - Via Monte Bianco 60/A 20089 Rozzano (MI). Ogni agenzia ha un proprio titolare ed è autonoma. Privacy policy | Policy utilizzo | Cookie policy